和歌山市エリア/ゲストハウス・式場・宴会場
ピエンツァ/ ラヴィーナ和歌山
- 住所
- 和歌山県和歌山市中639番地6
- アクセス
-
- 和歌山大学前駅から徒歩約11分(約0.9km)、車で約3分
- 阪和自動車道「和歌山IC」から約30分
- 和歌山大学前駅から無料シャトルバスあり(主に土日祝)
高い天井からドレープが弧を描く空間にヴェネツィア製のシャンデリアが煌めく会場
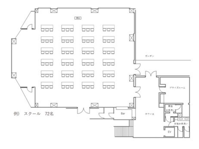
| 会場名 | 収容人数 | スペック | ||||||||
|---|---|---|---|---|---|---|---|---|---|---|
| スクール | シアター | 口の字 | コの字 | 島型 | 対面 | 立食 | 着席 | 面積(m²) | 天井高(m) | |
![]() |
72 | 120 | - | - | - | - | 140 | 90 | 217.8 | 8.3 |
![]() |
90 | 135 | - | - | - | - | 140 | 90 | 211.2 | 9.2 |
-
都道府県で探す
主要都市で探す
-
利用目的で探す -
利用人数で探す



